[pear_error: message="Success" code=0 mode=return level=notice prefix="" info=""]

JUGEMテーマ:夢のマイホーム計画 「住まいと家計のコンシェルジュ」スタイルワンコンサルティング代表、 【家づくりエージェント】の阿部でございます。 さて今日は、要望を100%実現させる家づくりの方法についてのお話。 先日ライフプランと家づくりに関する 「ビジョンボード」をお客様と一緒に作成しました^^ ビジョンボードって何??? って言う方もいらっしゃると思いますので 少し説明をしますね。 自分の夢や希望、欲しいものなどを象徴化した写真を 貼り混ぜたものを壁に掲げることで、...
家が欲しくなったら読むブログ | 2015.04.23 Thu 15:28
JUGEMテーマ:夢のマイホーム計画 「住まいと家計のコンシェルジュ」スタイルワンコンサルティング代表、 【家づくりエージェント】の阿部でございます。 さて今日は、ハウスメーカーが提案する間取りについてのお話。 ここのところ、ハウスメーカーが提案した図面を見る機会が数件ありました。 で、それを見た感想は… そんな図面で 「契約を下さい!」って 御世辞にも言えたような代物ではないってこと。 もうちょいとさ しっかりとさ お客様の要望を しっかりと反映させる「努...
家が欲しくなったら読むブログ | 2015.04.21 Tue 17:04
JUGEMテーマ:夢のマイホーム計画 「住まいと家計のコンシェルジュ」スタイルワンコンサルティング代表、 【家づくりエージェント】の阿部でございます。 さて今日は家づくりと飲ミュニケーションについてのお話。 先週の土曜日、【KB様】と建築家【U氏】と私の3人で 御食事をしてきましたです。 目的は、【KB様邸新築工事】のメンバー間の コミュニケーションをより深くするためのものです。 飲まなきゃ深く出来ないのか? ってな事ではありませんが、 飲みながら、家づくりや建築の話をする...
家が欲しくなったら読むブログ | 2015.04.20 Mon 15:29
JUGEMテーマ:夢のマイホーム計画 「住まいと家計のコンシェルジュ」スタイルワンコンサルティング代表、 【家づくりエージェント】の阿部でございます。 さて今日は建築家が創る家についてのお話。 建築家が創る家って デザイン重視みたいな印象があるかと思います。 確かにデザイン重視の家づくりをしている建築家はいますが、 全ての建築家がそうかと言うと そうでもありません。 少なくとも 【家づくりエージェント】の【間取りコンペ】に参加する建築家は 自身の「作品づくり」に重きを...
家が欲しくなったら読むブログ | 2015.04.16 Thu 14:31
JUGEMテーマ:夢のマイホーム計画 「住まいと家計のコンシェルジュ」スタイルワンコンサルティング代表、 【家づくりエージェント】の阿部でございます。 さて今日は、yahooニュースで気になる記事を見つけたのでそのお話。 その記事はこれ↓↓↓ 【大手不動産が不正行為か 流出する“爆弾データ”の衝撃】 記事の内容は、以前ブログにも書きましたが、 「物件の囲い込み」についてのこと。 この囲い込みは 専任、専属専任といった媒介契約を締結している物件に多く見ら...
家が欲しくなったら読むブログ | 2015.04.15 Wed 00:37
JUGEMテーマ:夢のマイホーム計画 「住まいと家計のコンシェルジュ」スタイルワンコンサルティング代表、 【家づくりエージェント】の阿部でございます。 さて今日は来年1月末完成予定の【KB様邸】のお話。 先週の土曜日に、建築家【U氏】と設計契約を締結しました。 事前に重要事項説明書や契約書を交付していただいて チェックをしたので、印鑑を押す手も震えません(笑) で、締結後に早速図面の打合せ。 実質3階建てなのですが、 3階建てにしてしまうと、 建築コストが結構掛かるので(準耐...
家が欲しくなったら読むブログ | 2015.04.14 Tue 14:22
JUGEMテーマ:夢のマイホーム計画 「住まいと家計のコンシェルジュ」スタイルワンコンサルティング代表、 【家づくりエージェント】の阿部でございます。 さて今日は、今後のスタイルワンコンサルティングが 進むべき方向性についてのお話。 マイホーム購入専門のFP事務所として独立したのが 2008年の5月のこと。 それから7年と11カ月が過ぎ そろそろ8年目に突入します。 もう7年も経つのですな… 独立したての頃は ただがむしゃらで 無名な私のコンサルティングに興味を持って...
家が欲しくなったら読むブログ | 2015.04.12 Sun 20:38
JUGEMテーマ:夢のマイホーム計画 「住まいと家計のコンシェルジュ」スタイルワンコンサルティング代表、 【家づくりエージェント】の阿部でございます。 さて今日は、建築家との相性についてのお話。 家づくりは 結婚と同じくらい 重要な決断を迫られるものです。 その決断を下すのには 「裏付け」のような 確信めいた何かが必要になるのですが、 建築家との「相性」が良くないと そう言った「裏付け」も 「確信」も得られないまま 家づくりが進んでしまうことになってしまいます。 ...
家が欲しくなったら読むブログ | 2015.04.11 Sat 01:16
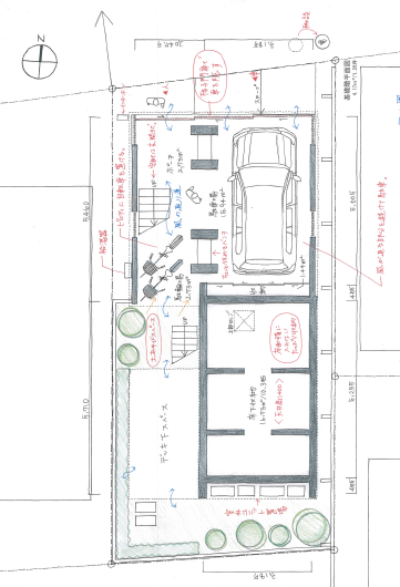
JUGEMテーマ:夢のマイホーム計画 「住まいと家計のコンシェルジュ」スタイルワンコンサルティング代表、 【家づくりエージェント】の阿部でございます。 【間取りコンペ】が終了し、建築家が決定した【KB様邸】。 今週末、設計契約締結の運びとなりました、 いや〜始まりますね^^ 来年の1月末完工に向けてスタートします! スケジュール的には、 基本設計はほぼ終わっているので、 これから仕様など 細かいデティールを色々と決めていく作業になります。 この図面が立体的に立ち上...
家が欲しくなったら読むブログ | 2015.04.09 Thu 16:37
JUGEMテーマ:夢のマイホーム計画 住宅ローンの土地代融資実行のため、再度信金さんへ。 今回は夫が仕事を休めないので、わたしと娘だけで行ってきました。 わたしは免許を取ってから十数年、ずーっとペーパードライバーだったのですが 娘が生まれたのをきっかけに運転するようになって、なんとか自宅周辺くらいは 問題なく行ける様になってきたんですが・・・ 今回住宅ローンを借り入れるにあたってクライムホームさんの本社がある 埼玉県久喜市での支店で手続きをすることになっているので ちょっとばかり家からは遠い・・...
my home dream | 2015.04.05 Sun 17:52
全1000件中 881 - 890 件表示 (89/100 ページ)