[pear_error: message="Success" code=0 mode=return level=notice prefix="" info=""]

岡山県岡山市北区伊福町3丁目21-23 (JR岡山駅から徒歩約22分 (1770m)) マンション名:ロイヤルガーデン岡山運動公園 こちらのマンションの間取り図面をご紹介致します。 広々としたルーフバルコニー付きのお部屋です。 横長のリビングダイニングキッチンは約20帖以上のゆったりとした空間です。 廊下部分がしっかり取られておりますので、各居室のプライべーとスペースを保つことができます。 ★ロイヤルガーデン岡...
上から読んでも下から読んでも「じんぜんじ」 | 2020.10.08 Thu 15:11
岡山県岡山市北区伊福町3丁目21-23 (JR岡山駅から徒歩約22分 (1770m)) マンション名:ロイヤルガーデン岡山運動公園 こちらのマンションの間取り図面をご紹介致します。 三面バルコニー・三面スカイテラスの贅沢な造りです。 全居室6帖以上且つ、リビングダイニングキッチンが20帖以上のかなりゆったりとした間取りです。 お子様の多いご家族・ご両親と一緒に住まう予定の方にもおすすめの間取りです。 分譲マンションの おす...
上から読んでも下から読んでも「じんぜんじ」 | 2020.10.08 Thu 09:41
岡山県岡山市北区伊福町3丁目21-23 (JR岡山駅から徒歩約22分 (1770m)) マンション名:ロイヤルガーデン岡山運動公園 こちらのマンションの間取り図面をご紹介致します。 全居室6帖以上の間取りになっています。 キッチン・洗面室・廊下の家事、生活動線が良いのが特徴です。 玄関からリビングが見えない事で、室内のプライベート空間が守られます。 分譲マンションの おすすめの探し方として、間取り図面をご覧頂きながらご...
上から読んでも下から読んでも「じんぜんじ」 | 2020.10.06 Tue 10:11
岡山県岡山市北区伊福町3丁目21-23 (JR岡山駅から徒歩約22分 (1770m)) マンション名:ロイヤルガーデン岡山運動公園 こちらのマンションの間取り図面をご紹介致します。 アルコーブが有りプライベート空間を守ることができ、L字の下駄箱は収納力抜群です。 バルコニーは開放的な空間を演出するスカイテラスが有り、スロップシンクがある事で、 掃除やガーデニングがしやすいです。 キッチンが4.9帖ある為、冷蔵庫置き場...
上から読んでも下から読んでも「じんぜんじ」 | 2020.10.03 Sat 09:38
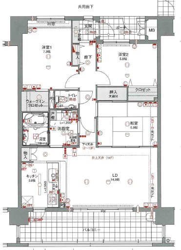
岡山県岡山市北区伊福町3丁目21-23 (JR岡山駅から徒歩約22分 (1770m)) マンション名:ロイヤルガーデン岡山運動公園 こちらのマンションの間取り図面をご紹介致します。 全居室6帖以上の間取りで柱の角が少ないので、家具の配置がしやすく隅々まで無駄なく使うことができます。 ロイヤルガーデンならではのスカイテラスが有り、バルコニー部分が広く取られており、アルコーブ付きで 玄関先のプライベート空間を守ることができます。 キッチンはL字のスタイ...
上から読んでも下から読んでも「じんぜんじ」 | 2020.10.02 Fri 12:01
岡山県岡山市北区伊福町3丁目21-23 (JR岡山駅から徒歩約22分 (1770m)) マンション名:ロイヤルガーデン岡山運動公園 こちらのマンションの間取り図面をご紹介致します。 全居室6帖以上の間取りで柱の角が少ないので、家具の配置がしやすく隅々まで無駄なく使うことができます。 ロイヤルガーデンならではのスカイテラスが有り、バルコニー部分が広く取られております。 アルコーブがあり、玄関先のプライベート空間を守ることができます。 キッチンはL字のスタ...
上から読んでも下から読んでも「じんぜんじ」 | 2020.10.01 Thu 09:36
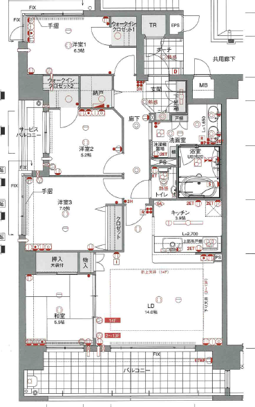
岡山県岡山市北区伊福町3丁目21-23 (JR岡山駅から徒歩約22分 (1770m)) マンション名:ロイヤルガーデン岡山運動公園 こちらのマンションの間取り図面をご紹介致します。 南向きの角部屋のタイプです。北と南にバルコニーが有り、開放感のある間取りです。 各居室6.2帖以上あり、北側の洋室は9.7帖のかなりゆったりしております。 L字の対面式キッチンとなっており、16帖のリビングダイニングで寛ぐご家族との会話を楽しみながら家事をして頂けます。 分譲マンショ...
上から読んでも下から読んでも「じんぜんじ」 | 2020.09.29 Tue 15:48
こんばんは!株式会社ウェーブハウスの秦泉寺です。 この度株式会社ウェーブハウスは「岡山市の中古マンション取引件数」がNO.1となりました☺ ※(2020年9月調査時点株式会社東京商工リサーチ調べ 引き続き、不動産を「売りたい方」と「買いたい方」の縁結びを精一杯努めさせて頂きます。 一件一件、より満足頂きますので、御力になれることがございましたら株式会社ウェーブハウスまで お気軽にお声掛け下さいませ。 お問い合わせ先:0120-9696-19...
上から読んでも下から読んでも「じんぜんじ」 | 2020.09.27 Sun 18:43
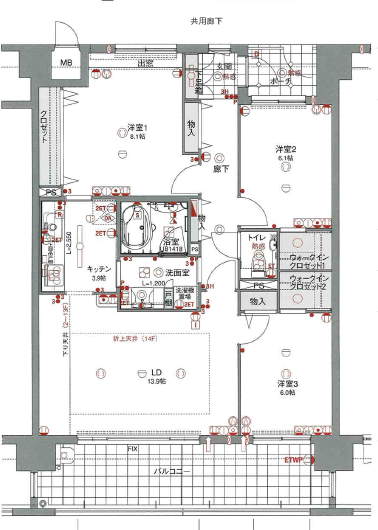
岡山県岡山市北区伊福町3丁目11-1 (JR山陽本線岡山駅から徒歩約12分 (950m)) マンション名:リビンコートプライム伊福町 こちらのマンションの間取り図面を紹介致します。 2LDKの間取りです。キッチン・洗面所・洋室等生活・家事動線が優れています。 窓が多いの窓が多いので、光を取り入れたり、換気をすることができるお部屋になっております。 廊下部分が短く、各居住スペースや、家族団欒のリビング広く取られています。 分譲マンションの おす...
上から読んでも下から読んでも「じんぜんじ」 | 2020.09.26 Sat 10:57
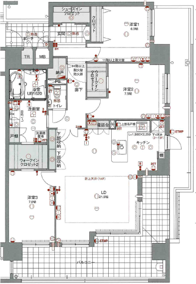
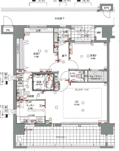
岡山県岡山市北区伊福町3丁目11-1 (JR山陽本線岡山駅から徒歩約12分 (950m)) マンション名:リビンコートプライム伊福町 こちらのマンションの間取り図面を紹介致します。 3LDKの南側の角部屋の間取りです。全居室がフローリング仕様で6.3帖以上確保されており、 ゆったりとしたプライベート空間です。 スタイリッシュなL字のキッチンになっているのも特徴の一つです。 ウォークインクローゼット・シューズインクローゼット等が充実しているお部屋で...
上から読んでも下から読んでも「じんぜんじ」 | 2020.09.26 Sat 10:48
全756件中 401 - 410 件表示 (41/76 ページ)