[pear_error: message="Success" code=0 mode=return level=notice prefix="" info=""]

こんにちは!株式会社ウェーブハウスの秦泉寺(じんぜんじ)です。 弊社にてお預かりしているマンションの一室「フォーラムシティビル」の パノラマ写真をご紹介! 👆詳しい情報はこちらをクリック 「フォーラムシティビルパノラマ写真」 👆360度パノラマ写真はこちら お問い合わせ先:0120-9696-19 株式会社ウェーブハウス 担当:秦泉寺 慎太郎 岡山の不動産プロフェッショナル集団 株式会社ウェーブハウス ...
上から読んでも下から読んでも「じんぜんじ」 | 2021.01.14 Thu 14:30
こんばんは!株式会社ウェーブハウスの秦泉寺(じんぜんじ)です。 弊社にてお預かりしているマンションの一室「サーパス津高台通り一番館」で パノラマ写真が公開となりましたのでご紹介致します。 👆詳しい情報はこちらをクリック 「サーパス津高台通り一番館パノラマ写真」 👆360度パノラマ写真はこちら 売主様が退去され、空室での販売となっておりますので ご内覧希望・ご質問等ございましたらお気軽にお申し付け下さいませ。 お問い合わせ...
上から読んでも下から読んでも「じんぜんじ」 | 2021.01.11 Mon 17:35
こんばんは!株式会社ウェーブハウスの秦泉寺(じんぜんじ)です。 本日弊社にて津島小学校に位置する分譲マンション「ピュアパルク津島西」の一室がご成約となりました☺ 売主様・買主様この度は誠におめでとうございます☺ ★ピュアパルク津島西について ・築18年 ・エレベーター2基 ・宅配ボックス有 ・フルフラット ・アクセス良好 「ピュアパルク津島西」をはじめとする「津島小学校区」の分譲マンションでご売却を検討されている方や...
上から読んでも下から読んでも「じんぜんじ」 | 2020.12.22 Tue 16:50
岡山県岡山市北区駅元町14-1 (JR岡山駅から徒歩約3分 (200m)) マンション名:フォーラムシティビル フォーラムシティビルの間取り図面を紹介していきます🎉 ・3LDK ・南向き中部屋 ・アルコーブ有り ・壁向きのキッチン ・廊下部分がしっかり確保されており、それぞれのプライベート空間が守られます。 マンション外観 ...
上から読んでも下から読んでも「じんぜんじ」 | 2020.12.21 Mon 14:31
こんにちは!株式会社ウェーブハウスの秦泉寺(じんぜんじ)です。 本日弊社にて横井小学校に位置する分譲マンション「ライオンズマンション津高」の一室がご成約となりました☺ 売主様・買主様この度は誠におめでとうございます☺ ★ライオンズマンション津高について ・南向き ・築29年 ・生活施設徒歩圏内 「ライオンズマンション津高」をはじめとする「横井小学校区」の分譲マンションでご売却を検討されている方や、 相続されて今後どうす...
上から読んでも下から読んでも「じんぜんじ」 | 2020.12.20 Sun 15:44
おはようございます!株式会社ウェーブハウスの秦泉寺(じんぜんじ)です。 本日は岡山市北区にて「山陽女子ロードレース」が開催されます! ハーフマラソンとなり1時間30分前後の交通規制があります。 弊社にご来店予定のお客様、岡山市中心部へ行くご予定の方、交通規制と人混みにご注意くださいませ。 TV中継がされるようですので、ご自宅からの応援が良いかと思います☺ 岡山の不動産プロフェッショナル集団株式会社ウェーブハウス ...
上から読んでも下から読んでも「じんぜんじ」 | 2020.12.20 Sun 10:15
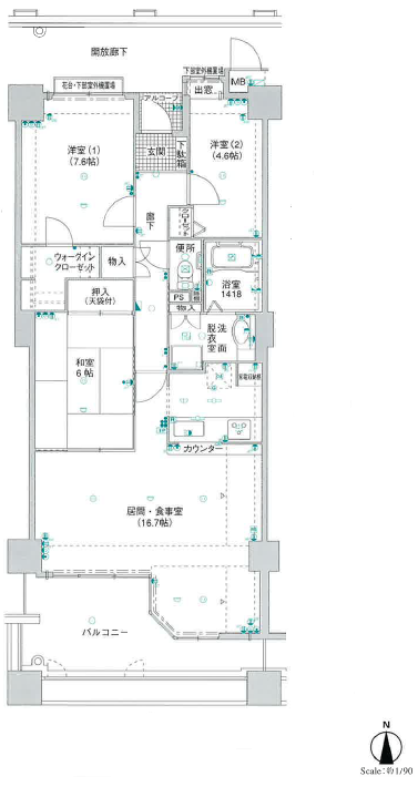
岡山県岡山市北区駅元町14-1 (JR岡山駅から徒歩約3分 (200m)) マンション名:フォーラムシティビル フォーラムシティビルの間取り図面を紹介していきます🎉 ・3LDK ・南向き中部屋 ・アルコーブ有り ・対面式キッチン ・7.8帖の広々とした洋室 ・リビングダイニング合わせて約15条以上 マンション外観 フォーラムシ...
上から読んでも下から読んでも「じんぜんじ」 | 2020.12.19 Sat 15:15
岡山県岡山市北区中井町 (JR法界院駅から徒歩約13分 (1,000m)) マンション名:パークヒルズ岡北大橋リバーステージ 階数:11F 2LDK/70.01m2 マンション外観 パークヒルズ岡北大橋リバーステージは2008年1月新築で総戸数42戸の分譲マンションです。 梁を少なくし、開放感のある空間、隣の住戸との壁、外壁を厚くすることで遮音性・断熱性が優れています。 商業施...
上から読んでも下から読んでも「じんぜんじ」 | 2020.12.18 Fri 18:11
岡山県岡山市北区駅元町14-1 (JR岡山駅から徒歩約3分 (200m)) マンション名:フォーラムシティビル フォーラムシティビルの間取り図面を紹介していきます🎉 ・3LDK ・南向き中部屋 ・アルコーブ有り ・L字型キッチン ・リビングダイニング合わせて約18帖 マンション外観 フォーラムシティビルは2001年1月新築で総戸数90戸の分譲マンションです。...
上から読んでも下から読んでも「じんぜんじ」 | 2020.12.17 Thu 11:26
岡山県岡山市北区駅元町14-1 (JR岡山駅から徒歩約3分 (200m)) マンション名:フォーラムシティビル フォーラムシティビルの間取り図面を紹介していきます🎉 ・3LDK ・南向き中部屋 ・アルコーブ有り ・対面式キッチン ・7帖以上の洋室有り マンション外観 フォーラムシティビルは2001年1月新築で総戸数90戸の分譲マンションです。 ...
上から読んでも下から読んでも「じんぜんじ」 | 2020.12.14 Mon 10:21
全756件中 361 - 370 件表示 (37/76 ページ)