[pear_error: message="Success" code=0 mode=return level=notice prefix="" info=""]

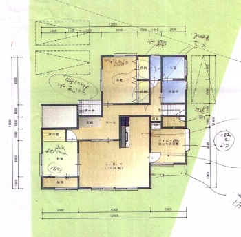
色々と楽しく悩んだ間取り図… 12月の初旬着工を目指して打ち合わせを繰り返しました。 そしてとうとう、間取りが確定しました 間取りが確定した日が何日だったかはっきりとは覚えていませんが(^^ゞ、 11月の中ごろだったと思います。 というか、11月23日の地鎮祭の日に配置出ししてあったので、 それまでには決まっていたんじゃないかと…(^^ゞ 早速、確定した間取り図をご紹介します 【1階】 1階で変わった場所は和室の床の間のところだけですね お客様がみえた時のために、布団を仕舞える収納...
あったか賑やかマイホーム♪ | 2017.12.05 Tue 23:44
一昨日の日記で、間取りをどんな風に変えていこうか… という内容の記事を書きました 白黒の間取り図に赤ペンで変更箇所を入れていったのですが、 その作業をしたのは11月9日のことでした。 そして、赤ペン箇所をしっかり変更されたカラーの図面をすぐにいただきました。 お披露目します@^^@ (このブログは、少し過去にさかのぼる形で書いており、 今現在はもう建築中で、家がだいぶ完成に近づいた状態です。) 【1階】 <変更箇所> ・リビングの広さ ・和室の床の間と収納 ・和室と縁側の間の...
あったか賑やかマイホーム♪ | 2017.12.05 Tue 23:37
先日提案していただいた間取りプラン?をベースに、 『ここはこうしたい』という箇所を少しずつ変更していきました 【1階】 ・玄関から和室への入り口を無くし収納にしましたが、 布団を仕舞える幅が欲しいと思い、 この時点では床の間と半分ずつにしてみました。 ・玄関から和室の入り口を無くした事で玄関ホールの面積が狭くなりました。 圧迫感を無くす為に土間と床の形を変えました。 土間の形というか向きを変えただけでこんなに広々するのかと、 ものすごく感激しました(*≧▽≦*) ・和室と縁側の間の壁&...
あったか賑やかマイホーム♪ | 2017.12.05 Tue 23:29
JUGEMテーマ:注文住宅 お客様のご厚意で、土日に内覧会を開催しました。 今週末の12月9日と10日を最後に、引渡し前内覧会を開催します。 まだ見ていない方は、ご来場をお待ちしています。 多くのお客様にご覧いただきありがとうございました。
JMCブログ | 2017.12.04 Mon 13:00
最初の『仮の間取り図』を土地の図面に置いたのが 10月終わり(買付証明を出してすぐ)だったと思いますが、 それからすぐ、正式な間取りを二つ提案していただきました 間取り図をスキャナで読んで編集した時に縮尺を間違えたので、 一階と二階の縮尺というか、広さが揃っていません( ̄▽ ̄;; 【プラン1】 一階・二階全ての居室が東側と南側にありながら、 コンパクトにまとめてあります。 一階:両親の部屋が東側、犬猫部屋が東南、リビングと和室が南に面しています。 バイク用のガレージが...
あったか賑やかマイホーム♪ | 2017.12.03 Sun 23:42
土地を決め、10月28日に買付証明を出し、 契約・決済・地鎮祭と色んな手続き等を薦めて行くのと同時に、 間取りを決める打ち合わせも週末ごとにおこない、 私達の夢が紙の上でどんどん形になってきました。 今回は、一番最初にアキュラさんからいただいた手書きの間取り図を お披露目します これは「とりあえずの間取り図」で、この土地の2つ前に候補に あがっていた福田の土地用に設計して頂いたものです。 この形の土地に家を建てるとこんな風に配置される…といのが分かるように、 土地の上に仮の間取り図を配置し...
あったか賑やかマイホーム♪ | 2017.12.03 Sun 23:30
10月28日に土地の買付証明を出し、 契約・決済・地鎮祭と着々と進みましたが、 同時に間取りも考え始め、こちらも着々と進んでいきました。 11月23日の地鎮祭の時には、もう間取りができていました 間取りに関しての私達の要望は… ・1階にLDKと独立した和室、両親の寝室、犬猫部屋を作りたい ・和室には縁側と床の間と収納が欲しい ・犬猫部屋は日当たりが良い場所に作りたい ・犬猫部屋は扉付きの頑丈なフェンスで半分に仕切りたい (でかくて若いアトム(犬)がうるさくて おばあちゃん犬の胡桃が嫌がるので)...
あったか賑やかマイホーム♪ | 2017.12.03 Sun 23:25
12/9・10 OB宅訪問ツアーのご案内 実際にレクサスホームで家を建てて、現在お住まいになっているOB様のご厚意で、OB宅訪問ツアーを開催することとなりました。 今回は2日間に分け、舞鶴会場・福知山会場にてそれぞれ1邸宅をご案内いたします! 12月 9日(土)・・・舞鶴会場 12月10日(日)・・・福知山会場 実際に住んでいるご家族の生の声が聞けるチャンスです! ・家づくりのきっかけは? ・家づくりでこだわったことは? ...
レクサスホーム 新着情報 | 2017.12.01 Fri 11:31
JUGEMテーマ:注文住宅 DHさんの地下施工実績の中に業者さんの名前があったので早速検索。 TU社です。 通常のRC(コンクリート)構造ではなく、 鋼製パネル構造なので水漏れが無いことと工期短縮が最大のウリ。 その代わりちょっと高いとのこと。 パネル同士の結合には地下鉄のトンネルにも使われているという部材を使用しており たしかに安心感はあります。 ここのWebサイトからは地下工事が得意というよりも 地下自体が好きなことがうかがえて、とても良いです。 地下室は鋼製パネルにしたいなー。 ...
自宅地下防音室への道 | 2017.11.30 Thu 00:57
JUGEMテーマ:注文住宅 suumoカウンターで紹介を受けた会社との最初の打合せ後は 内容や印象のアンケートをsuumoカウンターのWeb上で行うようです。 DH社について事業部長しゃべりすぎというのも含め、思ったままを書きました。 でも選択肢の項目とか、なんか選びづらい、使いづらいのが並んでるんですよねー。 あと、おそらくsuumoさんから各社さんにこちらの情報を「お客様シート」 みたいな形にして渡してると思うのですが、 質問内容にそのお客様シートに沿って話をしてもらえたか?みたいなのがあ...
自宅地下防音室への道 | 2017.11.30 Thu 00:53
全1000件中 601 - 610 件表示 (61/100 ページ)