[pear_error: message="Success" code=0 mode=return level=notice prefix="" info=""]

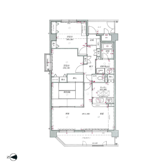
こんにちは!株式会社ウェーブハウスの秦泉寺です。 学南町二丁目の分譲マンション「ビ・ウェル学南町」の間取り図面をご紹介致します。 間取り図面 ・2LDK ・浴室1418タイプ ・全居室フローリング ・スロップシンク有り ・全居室収納有り ・ウォークインクローゼット有り ・南向き ...
上から読んでも下から読んでも「じんぜんじ」 | 2021.03.06 Sat 12:45
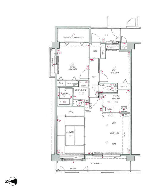
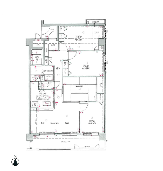
おはようございます!株式会社ウェーブハウスの秦泉寺です。 学南町二丁目に佇む築浅分譲マンション「ビ・ウェル学南町」の間取り図面をご紹介致します。 マンション外観 ・3SLDK ・浴室1620タイプ ・キッチン・洗面所・バルコニーの動線が優秀 ・LDK19帖以上有り ・全居室フローリング ・三面バルコニー &n...
上から読んでも下から読んでも「じんぜんじ」 | 2021.03.05 Fri 10:50
こんにちは!株式会社ウェーブハウスの秦泉寺です。 津島京町の分譲マンション「ビ・ウェル津島京町」の間取り図面をご紹介していきます。 間取り図面 ・4LDK ・角部屋 ・南向き ・和室有 ・全居室6帖以上 ・専用ポーチ有り ・LDKが20帖以上有り ・キッチンに勝手口有り ...
上から読んでも下から読んでも「じんぜんじ」 | 2021.03.04 Thu 17:04
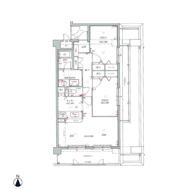
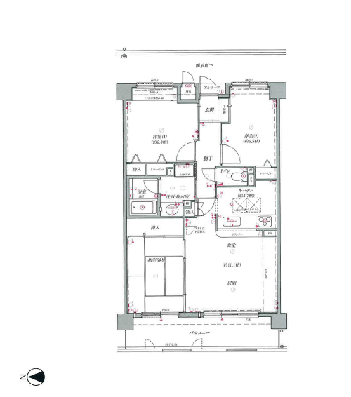
こんにちは!株式会社ウェーブハウスの秦泉寺です。 津島京町の分譲マンション「ビ・ウェル津島京町」の間取り図面をご紹介していきます。 間取り図面 ・3LDK ・中部屋 ・和室有 ・全居室6帖以上 ・専用ポーチ有り ・LDKが18帖以上有り 担当者コメント ...
上から読んでも下から読んでも「じんぜんじ」 | 2021.03.01 Mon 13:43
岡山市屈指の文教地区「津島」に佇むハイグレードマンション 「パーソンズカーサ津島」にて販売のご依頼を頂きました。 こちらのブログをご覧頂いておりますお客様に先行でご紹介致します。 ★パーソンズカーサ津島について ・平成15年3月新築(築17年) ・津島小学校区、京山中学校区 ・RC造 ・宅配ボックス有り ・敷地内平面駐車場1台確保可能 ・全戸にプライベートポーチ付き ・日本住宅管理株式会社管理 ★この度ご売却の販売開始となったお部屋 ・東向き中...
上から読んでも下から読んでも「じんぜんじ」 | 2021.02.28 Sun 13:38
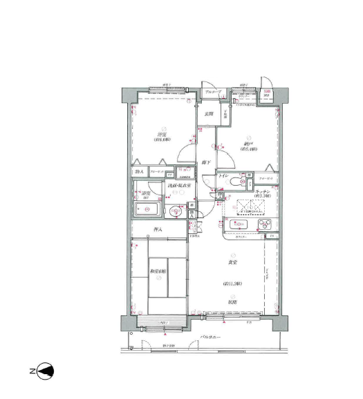
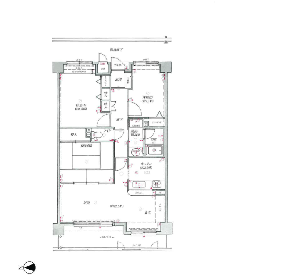
こんにちは株式会社ウェーブハウスの秦泉寺です。 津島京町の分譲マンション「ビ・ウェル津島京町」の間取り図面をご紹介していきます。 間取り図面 ・3LDK ・和室有 ・全居室エアコン設置可能 ・専用ポーチ有り 担当者コメント ビ・ウェル津島...
上から読んでも下から読んでも「じんぜんじ」 | 2021.02.28 Sun 09:01
こんにちは!株式会社ウェーブハウスの秦泉寺(じんぜんじ)です。 伊島町に位置する分譲マンション「ファミール伊島」を間取り図面の1つをご紹介致します。 間取り図面 ・5LDK→分譲マンションではかなり珍しく希少です ・対面式キッチン ・和室有り ・南向き ・全居室収納有り ・プライベートポーチ有り ・全居室エアコン設置可能 &nbs...
上から読んでも下から読んでも「じんぜんじ」 | 2021.02.26 Fri 14:50
こんばんは!本日弊社にてお預かりしておりました 「パーソンズカーサ津島」が成約となりました。 買主様・売主様この度は誠におめでとうございます。 ●わたしの「成約日記」 1/24 訪問 以前よりご売却のご相談を頂いてるお客様より「住み替え先が決まりました」とご連絡を頂きました。 ご売却を進めるため、再度お打合せをさせて頂きました。 1/25 販売開始 弊社にて販売のご依頼を頂きました。 2/2 広告掲載 自社HP・私のブログでマンションのご紹介をさせて頂きま...
上から読んでも下から読んでも「じんぜんじ」 | 2021.02.25 Thu 23:44
こんばんは!株式会社ウェーブハウスの秦泉寺(じんぜんじ)です。 本日弊社にてお預かりさせて頂いております「パークヒルズ岡北大橋リバーステージ」がご成約となりました☺ 売主様・買主様この度は誠におめでとうございます。 ★パークヒルズ岡北大橋リバーステージについて ・景色が良いく自然が豊か。川や山、街の風景など四季折々の表情が豊かです。 ・岡山駅や法界院駅まで徒歩圏内 ・天満屋ハピーズまで徒歩3分ほどで生活施設が充実 ★この度ご成約となりましたお部屋 ・...
上から読んでも下から読んでも「じんぜんじ」 | 2021.02.23 Tue 18:43
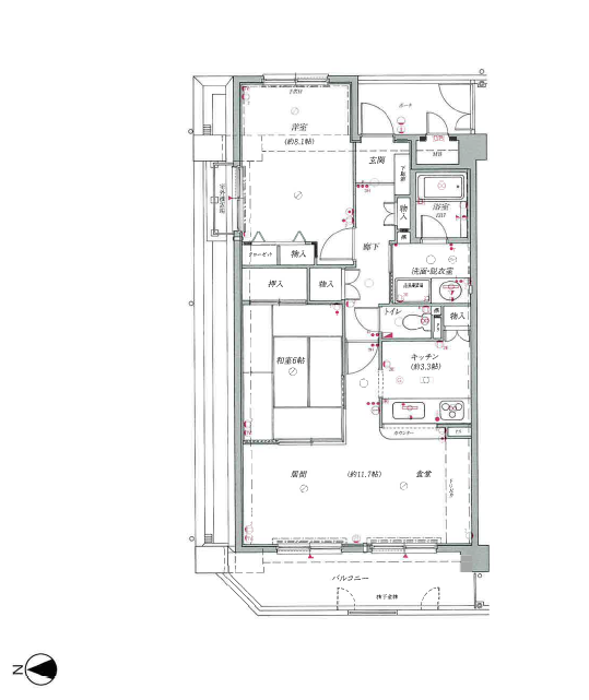
こんにちは!株式会社ウェーブハウスの秦泉寺(じんぜんじ)です。 引き続き「ファミール伊島」を間取り図面の1つをご紹介致します。 間取り図面 ・3LDK ・対面式キッチン ・和室有り ・西向き ・全居室収納有り ・プライベートポーチ有り ・全居室エアコン設置可能 &nb...
上から読んでも下から読んでも「じんぜんじ」 | 2021.02.23 Tue 13:15
全756件中 321 - 330 件表示 (33/76 ページ)