[pear_error: message="Success" code=0 mode=return level=notice prefix="" info=""]

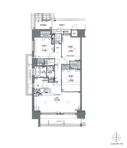
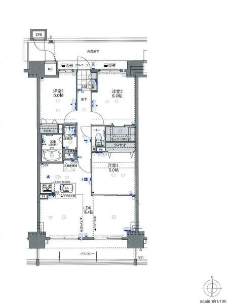
岡山県岡山市北区清心町17-32 (JR岡山駅から徒歩約13分 (1000m)) マンション名:リベール清心町 間取り図面 ・2LDK ・リビングダイニングキッチンで約19帖 ・スロップシンク有 ・キッチン、洗面所、浴室の生活動線が優秀 ・南向き角部屋 ・浴室に窓有り ・2面バルコニー ・ウォークインクローゼット有 ・明かりを取り込むコンサパトリー有 ...
上から読んでも下から読んでも「じんぜんじ」 | 2021.03.19 Fri 09:43
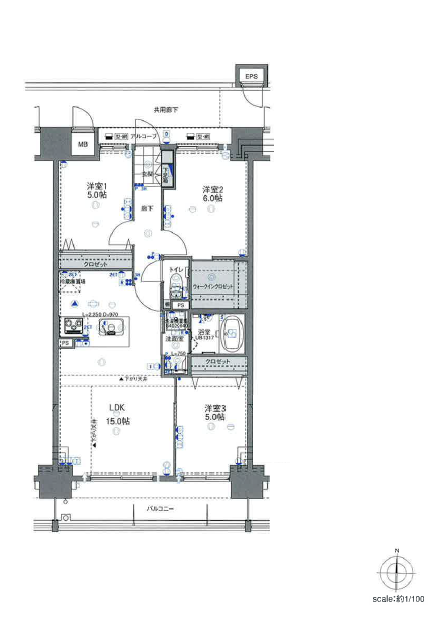
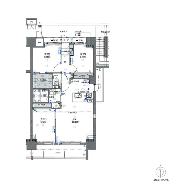
岡山県岡山市北区清心町17-32 (JR岡山駅から徒歩約13分 (1000m)) マンション名:リベール清心町 間取り図面 ・3LDK ・リビングダイニングキッチンで約19帖 ・スロップシンク有 ・和室有 ・南向き角部屋 ・浴室に窓有り ・2面バルコニー ・ウォークインクローゼット有 マンション外観 ...
上から読んでも下から読んでも「じんぜんじ」 | 2021.03.18 Thu 15:24
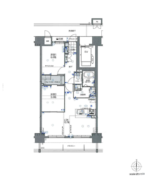
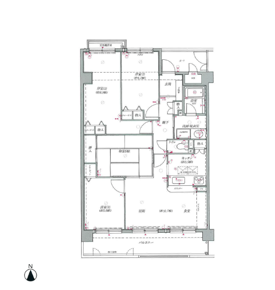
岡山県岡山市北区清心町17-32 (JR岡山駅から徒歩約13分 (1000m)) マンション名:リベール清心町 間取り図面 ・3LDK ・リビングダイニングキッチンで約19帖 ・スロップシンク有 ・和室有 ・南向き角部屋 ・洗面所、浴室に窓有り ・2面バルコニー マンション外観 ...
上から読んでも下から読んでも「じんぜんじ」 | 2021.03.13 Sat 18:01
岡山県岡山市北区奉還町三丁目21-15 (JR岡山駅から徒歩約9分 (700m)) マンション名:アルファステイツ岡山駅西 マンション外観 アルファステイツ岡山駅西は2010年1月新築で総戸数90戸の「穴吹興産」施主の分譲マンションです。 岡山駅まで徒歩10分の好立地で奉還町商店街を通れば、雨の日でも濡れることなく岡山駅西口ま行く事ができます。 60?〜70?のお部屋が多く、ご家族世帯、単身の方にも...
上から読んでも下から読んでも「じんぜんじ」 | 2021.03.12 Fri 10:37
こんにちは!株式会社ウェーブハウスの秦泉寺です。 弊社にて販売のお手伝いをさせて頂いている「パーソンズカーサ津島」の一室の 室内写真が公開となりましたのでこちらのブログをご覧の方にいち早くご紹介致します。 ●リビングの様子 ●住戸からの眺望写真(東のメインバルコニーからの眺望) ●リビング横の和室です。 ●窓の有る浴室 ★パーソンズカーサ津島について ・平成15年3月新築(築17年) ・津島小学校区、京山...
上から読んでも下から読んでも「じんぜんじ」 | 2021.03.08 Mon 17:09
こんにちは!株式会社ウェーブハウスの秦泉寺です。 学南町二丁目の分譲マンション「ビ・ウェル学南町」の間取り図面をご紹介致します。 間取り図面 ・2LDK ・浴室1418タイプ ・全居室フローリング ・スロップシンク有り ・全居室収納有り ・ウォークインクローゼット有り ・南向き ...
上から読んでも下から読んでも「じんぜんじ」 | 2021.03.06 Sat 12:45
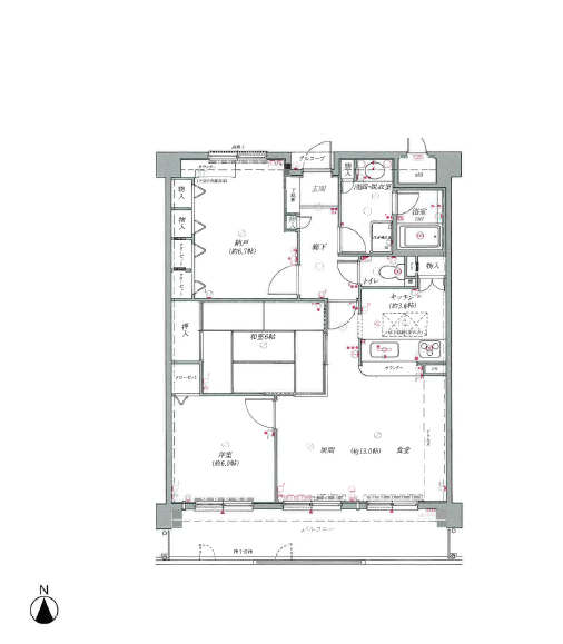
おはようございます!株式会社ウェーブハウスの秦泉寺です。 学南町二丁目に佇む築浅分譲マンション「ビ・ウェル学南町」の間取り図面をご紹介致します。 マンション外観 ・3SLDK ・浴室1620タイプ ・キッチン・洗面所・バルコニーの動線が優秀 ・LDK19帖以上有り ・全居室フローリング ・三面バルコニー &n...
上から読んでも下から読んでも「じんぜんじ」 | 2021.03.05 Fri 10:50
こんにちは!株式会社ウェーブハウスの秦泉寺です。 津島京町の分譲マンション「ビ・ウェル津島京町」の間取り図面をご紹介していきます。 間取り図面 ・4LDK ・角部屋 ・南向き ・和室有 ・全居室6帖以上 ・専用ポーチ有り ・LDKが20帖以上有り ・キッチンに勝手口有り ...
上から読んでも下から読んでも「じんぜんじ」 | 2021.03.04 Thu 17:04
こんにちは!株式会社ウェーブハウスの秦泉寺です。 津島京町の分譲マンション「ビ・ウェル津島京町」の間取り図面をご紹介していきます。 間取り図面 ・3LDK ・中部屋 ・和室有 ・全居室6帖以上 ・専用ポーチ有り ・LDKが18帖以上有り 担当者コメント ...
上から読んでも下から読んでも「じんぜんじ」 | 2021.03.01 Mon 13:43
岡山市屈指の文教地区「津島」に佇むハイグレードマンション 「パーソンズカーサ津島」にて販売のご依頼を頂きました。 こちらのブログをご覧頂いておりますお客様に先行でご紹介致します。 ★パーソンズカーサ津島について ・平成15年3月新築(築17年) ・津島小学校区、京山中学校区 ・RC造 ・宅配ボックス有り ・敷地内平面駐車場1台確保可能 ・全戸にプライベートポーチ付き ・日本住宅管理株式会社管理 ★この度ご売却の販売開始となったお部屋 ・東向き中...
上から読んでも下から読んでも「じんぜんじ」 | 2021.02.28 Sun 13:38
全771件中 331 - 340 件表示 (34/78 ページ)