[pear_error: message="Success" code=0 mode=return level=notice prefix="" info=""]

築20年以上・・・ 大手ハウスメーカーの住宅です。 お手入れも良く取り替えるのがもったいないような。 しかし・・・ 4人家族で水槽上にある卓上型の食器洗い機はジャマで! 2度洗いしないと、全ての食器が洗えない現実です。 そのうえ、洗っている騒音でTVの音も大きくしなければ。 朝昼晩の・・・ 3度の食器が一度に洗え、洗い音も気になりません。 深夜料金にタイマーセットすれば、メッチャ経済的! 昼間の電気料金の1/3、わずか10円/KWあたりです。 今まで・・・ ガスコンロで、壁...
あい・らぶリフォーム | 2019.07.10 Wed 13:11
今から・・・ 20年前に前職の会社で増築をして頂いたお客様です。 しばらく・・・ 外国で暮らされ、数年前に帰国されました。 20年以上も前の工事を覚えて頂いていたのですね! 「便器から水が漏れます!」とレスキューです。 それは大変!!と・・・ 慌てて便器と、職人さんを手配して納入したら 「えっ?商品を選べないの?!」と。 「我が家はそんなに急いでないから!」 いえいえ・・・ 「どこのメーカーでも、どんなタイプでもご自由に 選んで...
あい・らぶリフォーム | 2019.07.09 Tue 13:28
築30年以上・・・ 娘さんが高校生だった頃の建物です。 当時400万円のドイツ製キッチンを納入させて頂いたお客様。 RC造・・・ 「鉄筋コンクリート住宅」ですが、奥様の足腰がご不自由に 立ち座りがとても苦しくされています。 私が小学生の頃・・・ 小学生新聞の【連載】で「がんばれゴンベ」という 松江市出身の「園山俊二」氏の漫画で、主人公の ごんべが岩や壁に頭を打つと「鉄コン筋クリート!」と 叫んでいましたね!(超ふるっ!) その・・・ 鉄コンではなく、鉄筋コンクリート住...
あい・らぶリフォーム | 2019.07.08 Mon 12:48
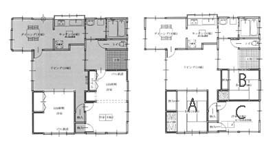
築40年以上・・・ ひろ〜いお屋敷に、こぢんまりとした平屋建て住宅 リタイヤを・・・ 目の前に控えた60代のご夫婦宅です。 弊社に三度目のリフォームをご発注頂きました。 和室を洋室にするご要望です。 荷物の・・・ 置き場が無いので、まずA室を工事してB室の荷物をA室に 移動して、和室Bと洋間Cを「ワンルームにして下さい」と。 少々・・・ 手間は掛かりますが「ハイよろこんで!」 BとCの間には・・・ 柱も壁もあります、屋根を支える梁もあります。 耐震を考えながら補...
あい・らぶリフォーム | 2019.07.06 Sat 14:50
JUGEMテーマ:生活情報 神ファンデで有名なマキアレイベルのスキンケアトライアル 送料無料980円クリアエステのお試しセットで とっても優秀な内容です 特別な成分は入っていませんが安心して遣える守りのケア!です。 そんな優しさがあります。 テクスチャーはこんなんです↓ この980円送料無料は本当に良心的なのでね今すぐ買わなくとも覚えておくのもアリかな この辺りでトライアルの中身に興味の出てきた方も居られる思いますので、...
コズミック カフェ アンビエント Cosmic Cafe Ambient | 2019.07.06 Sat 11:47
築70年ほど・・・ 農家住宅の納屋は農機具や稲わらなどを 格納するのにとても大切な建物でした。 近年・・・ 営農組合に米作りを依頼されるので農機具や 稲わらも格納する必要が無くなり空いていますが。。 壊すのにも・・・ 資金が必要で、さりとて老朽化すれば手入れも必要です 70年以上前の・・・ 瓦は、品質が安定せず歪みもあります。 1枚いちまい止めてないので、瓦がズレることもあります。 雨が漏れてからでは・・・ 建物に影響が出てくるので、梅雨の晴れ間を利用し...
あい・らぶリフォーム | 2019.07.04 Thu 12:22
JUGEMテーマ:生活情報 中古マンションの購入というか住宅市場全体に言えて気をつけるべきことは、何か? それは人口減に伴い住宅が過剰の時代になっていくということだ。 需要に対して供給が多いと物の価格が下がるというのは自明の理である。 特に未だにマンションがどんどん建てられているから中古マンションがどんどん増えることになる。 マンションは資産価値のある物件を買えと言われているが、供給過剰により当初想定していた以上に資産価値が下がるだろう。 つまり、よほ...
ミミズの戯言ジジのつぼ焼き | 2019.07.03 Wed 18:39
行ってみると・・・ 雨樋から雨が流れず、降った雨が雨樋から溢れ出ています。 水の重さで・・・↓ 雨樋の中央付近が垂れているのが分かります。 この面は長さ約8m・・・↑ 画像右側に1本だけ縦樋が1階の樋に流れています。 こちらの面では・・・↓ 雨樋が約6mもあるのに、縦の樋がありません。 雨水は軒先を90度回って縦樋に流れるようです。 そのために中央付近が雨の重さで垂れています。↓ いっぽう・・・↓ 反対面では軒先が約13mもあるのに縦樋は中央付近...
あい・らぶリフォーム | 2019.07.03 Wed 12:50
中国地方でも・・・ 広島のデパート2社と4社しか代理店が無い『ミラブル』 弊社が取り扱っています。 相変わらず・・・ 好調なご注文を頂いております。 本日も5台のご注文を頂きました。 ヘッドスパにも・・・ フェイスケアにもその洗浄力は爽快感! 毛穴の中まで・・・ 入り込んだ気泡がクレンジング残りや、古い角質 皮脂汚れも洗い流してくれるので石鹸が不要です! そのうえ・・・ 超微細な気泡は、洗浄力だけで無く肌の水分量を アップさせ、しっかりと保湿するの...
あい・らぶリフォーム | 2019.07.02 Tue 12:59
農家住宅の納屋です・・・ もともと「牛小屋」として利用されていましたが ウシもいなくなって、物置状態になっていました。 5台分の・・・ 駐車スペースが無く空き地を借りておられました。 「この牛小屋を車庫にしましょう!」と言うことで しかし・・・ 基礎もあり2階が乗っているので耐震補強が大切です 近年・・・ 素晴らしい構造補強部材が出ているので利用します。 さらに、これでもか!と言うほど壁や天井に合板で 「耐力壁」として強度を増しています。 重たい・・・ 瓦屋根...
あい・らぶリフォーム | 2019.07.01 Mon 12:34
全1000件中 271 - 280 件表示 (28/100 ページ)