[pear_error: message="Success" code=0 mode=return level=notice prefix="" info=""]

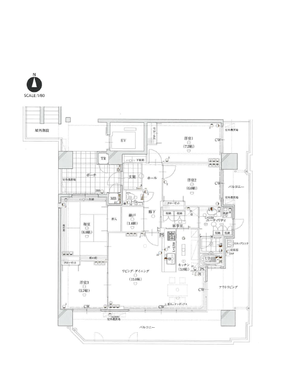
こんばんは! 株式会社ウェーブハウスの秦泉寺です。 石井小学校区で岡山駅まで徒歩圏内の分譲マンション「リベール岡山駅WEST」の間取図面のご紹介です。 このタイプの特徴 ・4LDK ・リビング横に和室有り ・南向き角部屋 ・対面式キッチン ・キッチン・洗面所・浴室・廊下の生活動線が優秀 ・二面バルコニー ・7帖のゆったりとした洋室有り ・全居室エアコン設置可能 ・全居室TV設置可能 ・ 「リベール岡山駅WEST...
上から読んでも下から読んでも「じんぜんじ」 | 2021.05.27 Thu 09:52
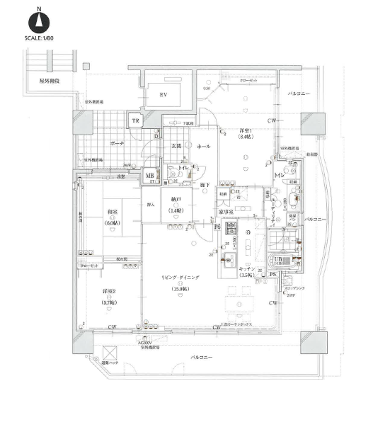
こんばんは! 株式会社ウェーブハウスの秦泉寺です。 石井小学校区で岡山駅まで徒歩圏内の分譲マンション「リベール岡山駅WEST」の間取図面のご紹介です。 このタイプの特徴 ・3LDK ・リビング横に和室有り ・南向き角部屋 ・対面式キッチン ・二面バルコニー ・7帖のゆったりとした洋室有り 「リベール岡山駅WEST」について ・平成23年4月新築(築10年) ・石井小学校区、石井中学校区 ・RC造 ・宅配ボックス有り ...
上から読んでも下から読んでも「じんぜんじ」 | 2021.05.25 Tue 10:08
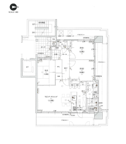
こんばんは! 株式会社ウェーブハウスの秦泉寺です。 石井小学校区で岡山駅まで徒歩圏内の分譲マンション「リベール岡山駅WEST」の間取図面のご紹介です。 このタイプの特徴 ・3LDK ・リビング横に和室有り ・南向き角部屋 ・対面式キッチン ・二面バルコニー ・トランクルーム ・ファミリークローゼット ・キッチン、洗面所、廊下の動線が優秀 ・洗面所に収納棚有り 「リベール岡山駅WEST」について ・平...
上から読んでも下から読んでも「じんぜんじ」 | 2021.05.25 Tue 10:07
こんばんは! 株式会社ウェーブハウスの秦泉寺です。 石井小学校区で岡山駅まで徒歩圏内の分譲マンション「リベール岡山駅WEST」の間取図面のご紹介です。 このタイプの特徴 ・3LDK ・リビング横に和室有り ・南向き中部屋 ・対面式キッチン 「リベール岡山駅WEST」について ・平成23年4月新築(築10年) ・石井小学校区、石井中学校区 ・RC造 ・宅配ボックス有り ・穴吹コミュニティ管理 ・ペアガラス採...
上から読んでも下から読んでも「じんぜんじ」 | 2021.05.23 Sun 18:52
おはようございます! 株式会社ウェーブハウスの秦泉寺です。 石井小学校区で岡山駅まで徒歩圏内の分譲マンション「リベール岡山駅WEST」の間取図面のご紹介です。 このタイプの特徴 ・3LDK ・和室有り ・二面バルコニー ・南向き角部屋 ・対面式キッチン ・ウォークインクローゼット有 「リベール岡山駅WEST」について ・平成23年4月新築(築10年) ・石井小学校区、石井中学校区 ・RC造 ・宅配ボックス有り ・穴吹...
上から読んでも下から読んでも「じんぜんじ」 | 2021.05.22 Sat 10:31
こんにちは! 株式会社ウェーブハウスの秦泉寺です。 御野小学校区の分譲マンション「リベール北方ヴェルデコート」の間取図面のご紹介です。 このタイプの特徴 ・4LDK ・和室有り ・対面式キッチン ・システムキッチン ・LDK20帖以上有り ・スロップシンク有り ・浴室に窓有り ・全居室エアコン、TV設置可能 ・南向き中部屋 ・ポーチ有り ・北側洋室3部屋は独立性が高く個室として使用しやすいです 「リベール北方ヴェル...
上から読んでも下から読んでも「じんぜんじ」 | 2021.05.21 Fri 13:12
おはようございます! 株式会社ウェーブハウスの秦泉寺です。 御野小学校区の分譲マンション「リベール北方ヴェルデコート」の間取図面のご紹介です。 このタイプの特徴 ・4LDK ・和室有り ・対面式キッチン ・システムキッチン ・LDK20帖以上有り ・キッチンから勝手口有り ・スロップシンク有り ・ファミリークローゼット ・浴室に窓有り ・3面バルコニー(サービスバルコニー含む) ・全居室エアコン、TV設置可能 ・南向き角部屋 ...
上から読んでも下から読んでも「じんぜんじ」 | 2021.05.20 Thu 09:45
おはようございます!株式会社ウェーブハウスの秦泉寺(じんぜんじ)です。 本日は私の担当小学校区(伊島・津島・横井・石井・御野・三門小学校区)のマンションブランド紹介の第8回となります。 「三井不動産」施主の「パークホームズ」シリーズをご紹介致します。 「御野小学校区」 「パークホームズ学南町」築18年 「伊島小学校区」 「パークホームズ岡山駅西」築14年 「実際に販売しているお部屋があるのか?」 「販売するとしたらいくら...
上から読んでも下から読んでも「じんぜんじ」 | 2021.05.17 Mon 09:51
こんばんは! 株式会社ウェーブハウスの秦泉寺です。 御野小学校区の分譲マンション「リベール北方ヴェルデコート」の間取図面のご紹介です。 このタイプの特徴 ・4LDK ・和室有り ・対面式キッチン ・システムキッチン ・LDK20帖以上有り ・リビングから勝手口有り ・スロップシンク有り ・3面バルコニー(サービスバルコニー含む) ・全居室エアコン、TV設置可能 ・南向き ・ポーチ有り ・ルーフバルコンニー有り &nbs...
上から読んでも下から読んでも「じんぜんじ」 | 2021.05.16 Sun 16:12
こんにちは! 株式会社ウェーブハウスの秦泉寺です。 御野小学校区の分譲マンション「リベール北方ヴェルデコート」の間取図面のご紹介です。 このタイプの特徴 ・4LDK ・和室有り ・対面式キッチン ・システムキッチン ・LDK20帖以上有り ・リビングから勝手口有り ・スロップシンク有り ・3面バルコニー(サービスバルコニー含む) ・全居室エアコン、TV設置可能 ・南向き ・ポーチ有り 「リベール北方ヴェルデ...
上から読んでも下から読んでも「じんぜんじ」 | 2021.05.16 Sun 09:45
全771件中 281 - 290 件表示 (29/78 ページ)