[pear_error: message="Success" code=0 mode=return level=notice prefix="" info=""]

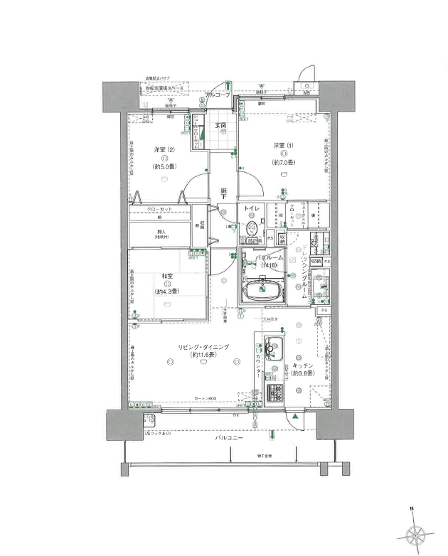
株式会社ウェーブハウスの秦泉寺です。 御野小学校区の分譲マンション「リベール北方ヴェルデコート」の間取図面のご紹介です。 このタイプの特徴 ・3LDL ・和室有り ・対面式キッチン ・システムキッチン ・スロップシンク有り ・全居室エアコン、TV設置可能 ・南向き 「リベール北方ヴェルデコート」について ・平成17年7月新築(築14年) ・御野小学校区、岡北中学校区 ・RC造 ・宅配ボックス有り ・大京アステ...
上から読んでも下から読んでも「じんぜんじ」 | 2021.05.13 Thu 12:22
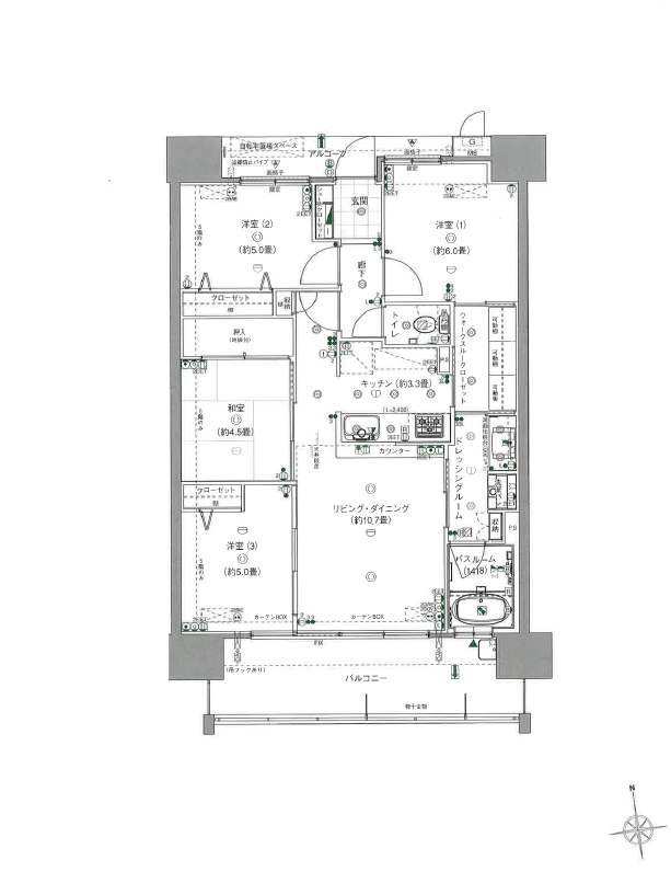
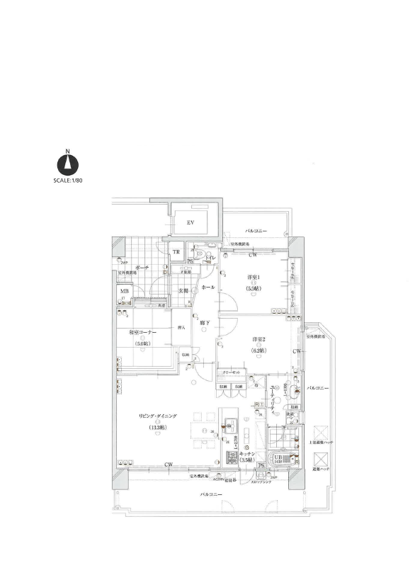
株式会社ウェーブハウスの秦泉寺です。 御野小学校区の分譲マンション「リベール北方ヴェルデコート」の間取図面のご紹介です。 このタイプの特徴 ・3LDK ・ウォークインクローゼット有り ・和室有り ・対面式キッチン ・スロップシンク有り ・全居室エアコン、TV設置可能 ・南向き 「リベール北方ヴェルデコート」について ・平成17年7月新築(築14年) ・御野小学校区、岡北中学校区 ・RC造 ・宅配ボックス有り ...
上から読んでも下から読んでも「じんぜんじ」 | 2021.05.07 Fri 12:43
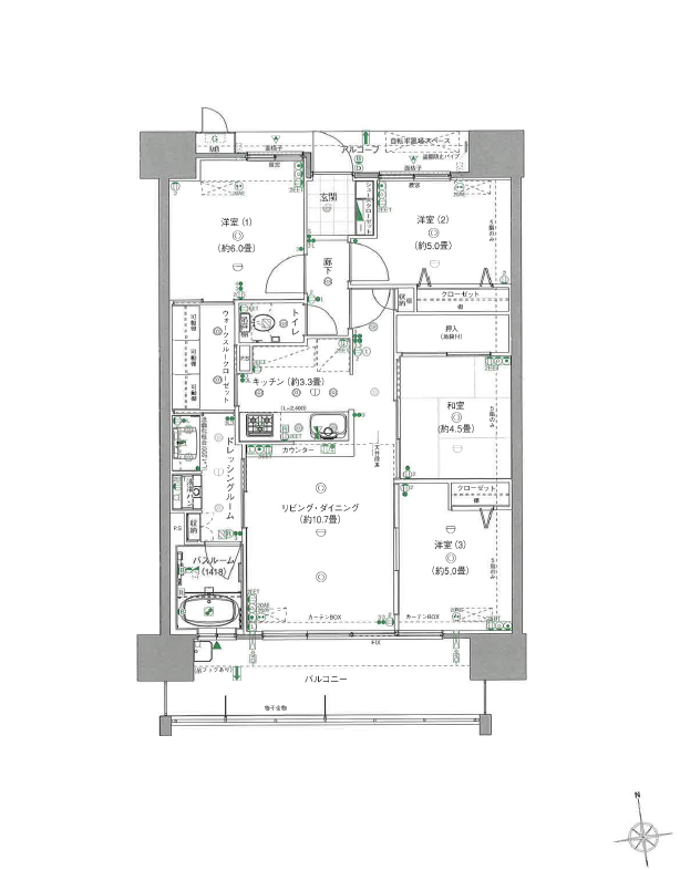
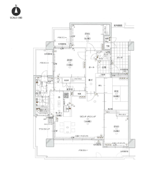
こんにちは!株式会社ウェーブハウスの秦泉寺です。 御野小学校区の分譲マンション「リベール北方ヴェルデコート」の間取図面のご紹介です。 このタイプの特徴 ・4LDK ・収納力の高いファミリークローゼット有り ・和室有り ・対面式キッチン ・2面バルコニー ・スロップシンク有り ・全居室エアコン、TV設置可能 ・浴室1618タイプ ・プライベートポーチ有り 「リベール北方ヴェルデコート」について ・平成17年7月新築...
上から読んでも下から読んでも「じんぜんじ」 | 2021.05.06 Thu 14:27
株式会社ウェーブハウスの秦泉寺です。三門小学校区の数少ない分譲マンション、 アルファライフ高柳(アルファライフタカヤナギ)の間取り図面をご紹介致します。 ・南向き角部屋 ・3LDK ・LDK15帖有り ・全居室収納有り ・全居室エアコン・テレビ設置可能 ※メニュープランが有り間取りが異なる場合がございます。 マンション外観 アルファライフ高柳は2...
上から読んでも下から読んでも「じんぜんじ」 | 2021.05.06 Thu 12:34
株式会社ウェーブハウスの秦泉寺です。三門小学校区の数少ない分譲マンション、 アルファライフ高柳(アルファライフタカヤナギ)の間取り図面をご紹介致します。 ・南向き ・2LDK ・LDK15帖有り ・全居室収納有り ・ウォークインクローゼット有 ・全居室エアコン・テレビ設置可能 ※メニュープランが有り間取りが異なる場合がございます。 マンション外観 ...
上から読んでも下から読んでも「じんぜんじ」 | 2021.05.03 Mon 11:27
株式会社ウェーブハウスの秦泉寺です。三門小学校区の数少ない分譲マンション、 アルファライフ高柳(アルファライフタカヤナギ)の間取り図面をご紹介致します。 ・南向き ・3LDK ・LDK15帖有り ・全居室収納有り ・ウォークインクローゼット有 ・全居室エアコン・テレビ設置可能 ※メニュープランが有り間取りが異なる場合がございます。 マンション外観 アルファライフ高柳は2010...
上から読んでも下から読んでも「じんぜんじ」 | 2021.05.02 Sun 16:45
こんにちは!株式会社ウェーブハウスの秦泉寺(じんぜんじ)です。 現在販売中のおすすめ物件をご紹介致します。 「アルファスマート高柳」 →弊社HPでの詳細はこちら ●3LDK ●全居室収納有り(北側洋室にウォークインクローゼット有) ●全居室エアコン・TV設置可能 ●リビングに引き戸の間仕切りが有り広々とした空間として使用する事も可能です 現在空室での販売となっておりますので、ご内覧希望やこの物件に関するご質問等ございましたら地域専門...
上から読んでも下から読んでも「じんぜんじ」 | 2021.05.01 Sat 11:59
こんにちは。株式会社ウェーブハウスの秦泉寺(じんぜんじ)です。 新しく販売開始となりました分譲マンションのご紹介です☺ 「サーパス津高台通り二番館」 →詳細ページはこちら ★この度販売となったお部屋 ・2SLDK ・高層階 ・南向き →南面に高い建物が無く、眺望、日当たり、通風良好 ・キッチンに勝手口有り ・和室有 ・北側洋室にエアコン設置可能 ・室内美装工事済みで状態良好 現在空室で販売をさせて頂いておりますので、ご内覧...
上から読んでも下から読んでも「じんぜんじ」 | 2021.04.26 Mon 14:19
こんにちは!株式会社ウェーブハウスの秦泉寺(じんぜんじ)です。 昨日弊社にてご売却のお手伝いをさせて頂いておりました「アルファライフ高柳」がご成約となりました。 売主様、買主様この度は誠におめでとうございます。 双方とても良い方で、素敵なお部屋の縁を取り持つことができ大変嬉しく思います。 お引渡しまでスムーズに取り行えるよう努めて参ります。 今回のお部屋は販売開始後1週間以内で2組のお客様より購入のお申し込みを頂くことができました。 その為、今回購入できなかったもう1組...
上から読んでも下から読んでも「じんぜんじ」 | 2021.04.25 Sun 12:38
こんにちは!株式会社ウェーブハウスの秦泉寺(じんぜんじ)です。 「リビンコートプライム津島(リビンコートプライムツシマ)」の一室で販売中のお部屋の 「360°写真」が公開となりました。 ★360°写真 ★お部屋の紹介ページはこちら →リビンコートプライム津島 ★リビンコートプライム津島について ●岡山市北区津島西坂2丁目5-15 ●敷地内平面駐車場1台確保可能 ●24時間ゴミ出し可能 →住戸の鍵でゴミ置き場を開閉できる...
上から読んでも下から読んでも「じんぜんじ」 | 2021.04.24 Sat 15:10
全768件中 291 - 300 件表示 (30/77 ページ)