[pear_error: message="Success" code=0 mode=return level=notice prefix="" info=""]

こんにちは!株式会社ウェーブハウスの秦泉寺です。 本日弊社にてお預かりしておりました 「パーソンズカーサ津島」の一室がご成約となりました。 買主様・売主様この度は誠におめでとうございます。 1/20 お問い合わせ 数年前にご購入頂いたお客様より、住み替えを考えているとのことでお問い合わせを頂きました。 2/7 訪問 近隣の販売情報や成約事例をもとに査定価格をお伝えさせて頂きました。お住み替え先が決まったら販売開始させて頂く事になりました。 2/27 販売...
上から読んでも下から読んでも「じんぜんじ」 | 2021.04.15 Thu 14:52
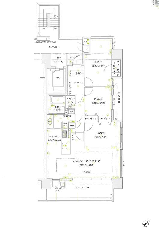
法界院駅徒歩圏内に佇むハイグレートマンション パーソンズリオ大和町(パーソンズリオヤマトチョウ)の間取り図面をご紹介致します。 間取り図面 ・南向き角部屋 ・4LDK ・2面バルコニー ・ポーチ有り ・対面式キッチン ・キッチン・家事室・洗面所・浴室・廊下の生活動線が優秀です。 ・キッチンに勝手口有り ・浴室に窓有り ・和室有り ・アウトリビング設計 ・全居室...
上から読んでも下から読んでも「じんぜんじ」 | 2021.04.10 Sat 12:35
こんばんは!株式会社ウェーブハウスの秦泉寺(じんぜんじ)です。 文教地区「津島」の分譲マンション 「リビンコートプライム津島(リビンコートプライムツシマ)」にて販売のご依頼を頂きました。 こちらのブログをご内覧の方に「特別」にインターネット公開前にご紹介致します。 ★この度販売する事になったお部屋 ●3LDK(約97?) ●南西角部屋 ●アイランドキッチン ●洗面台の洗い場が2個有り ●浴室に窓有り ●シューズインクローゼット有り ●全部屋ウォークインクローゼット有り ●...
上から読んでも下から読んでも「じんぜんじ」 | 2021.04.09 Fri 19:44
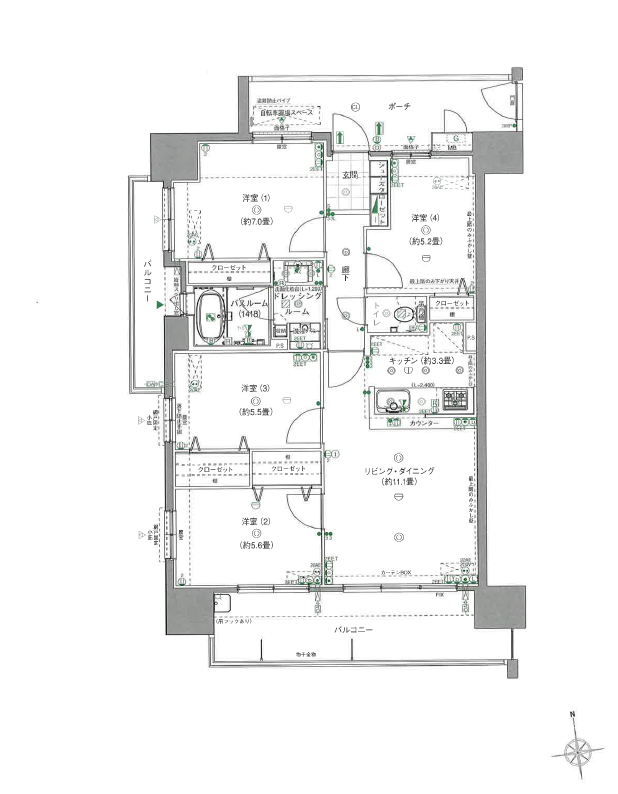
法界院駅徒歩圏内に佇むハイグレートマンション パーソンズリオ大和町(パーソンズリオヤマトチョウ)の間取り図面をご紹介致します。 間取り図面 ・南向き角部屋 ・3LDK ・三面バルコニー ・ポーチ有り ・対面式キッチン ・キッチン・洗面所・浴室・廊下の生活動線が優秀です。 ・キッチンに勝手口有り ・浴室に窓有り ・和室有り ・全居室エアコン設置可能 ...
上から読んでも下から読んでも「じんぜんじ」 | 2021.04.08 Thu 18:39
こんばんは!株式会社ウェーブハウスの秦泉寺(じんぜんじ)です。 本日弊社にてご売却のご依頼を頂きましたお部屋をこのブログをご覧の方に特別にご紹介致します☺ 三門小学校区の数少ない分譲マンション、 アルファライフ高柳(アルファライフタカヤナギ) マンション外観 アルファライフ高柳は2010年1月新築で総戸数70戸の分譲マンションです。 ★この度販売させ...
上から読んでも下から読んでも「じんぜんじ」 | 2021.04.06 Tue 19:23
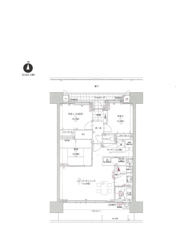
法界院駅徒歩圏内に佇むハイグレートマンション パーソンズリオ大和町(パーソンズリオヤマトチョウ)の間取り図面をご紹介致します。 間取り図面 ・南向き角部屋 ・4LDK ・三面バルコニー ・ポーチ有り ・対面式キッチン ・キッチン・洗面所・浴室・廊下の生活動線が優秀です。 ・浴室に窓有り ・和室有り ・全居室エアコン設置可能 ...
上から読んでも下から読んでも「じんぜんじ」 | 2021.04.06 Tue 11:21
こんばんは!株式会社ウェーブハウスの秦泉寺(じんぜんじ)です。 岡山県総合グラウンドやこどもの森が徒歩圏内の緑豊かな立地条件の「サーパス学南町」間取り紹介です。 間取り図面 ・3LDK ・南向き角部屋 ・対面式キッチン ・和室有り ・アルコーブ有り ・ドレッシングルーム(洗面所)、キッチン、バルコニーの生活動線が優秀 ・浴室に窓有り ・ポーチ有り ...
上から読んでも下から読んでも「じんぜんじ」 | 2021.04.05 Mon 16:25
こんばんは!株式会社ウェーブハウスの秦泉寺(じんぜんじ)です。 岡山県総合グラウンドやこどもの森が徒歩圏内の緑豊かな立地条件の「サーパス学南町」間取り紹介です。 間取り図面 ・4LDK ・南向き中部屋 ・対面式キッチン ・和室有り ・アルコーブ有り ・ウォークスルークローゼット、ドレッシングルーム(洗面所)、キッチンの動線が優秀 ・浴室に窓有り ...
上から読んでも下から読んでも「じんぜんじ」 | 2021.04.04 Sun 13:03
こんばんは!株式会社ウェーブハウスの秦泉寺(じんぜんじ)です。 岡山県総合グラウンドやこどもの森が徒歩圏内の緑豊かな立地条件の「サーパス学南町」間取り紹介です。 間取り図面 ・3LDK ・南向き中部屋 ・対面式キッチン ・和室有り ・アルコーブ有り ・ウォークインクローゼット ※メニュープランも有り、同じタイプでもいくつか種類があります。 ...
上から読んでも下から読んでも「じんぜんじ」 | 2021.04.03 Sat 13:20
こんばんは!株式会社ウェーブハウスの秦泉寺(じんぜんじ)です。 岡山県総合グラウンドやこどもの森が徒歩圏内の緑豊かな立地条件の「サーパス学南町」間取り紹介です。 間取り図面 ・3LDK ・南向き中部屋 ・横向き対面式キッチン ・浴室に窓有り(中部屋では珍しい設計ですね) ・和室有り ・キッチンからバルコニーへの勝手口有り ・キッチン、洗面所、ウ...
上から読んでも下から読んでも「じんぜんじ」 | 2021.04.02 Fri 09:01
全761件中 301 - 310 件表示 (31/77 ページ)