[pear_error: message="Success" code=0 mode=return level=notice prefix="" info=""]

こんにちは、SLow Life Labo です。 今日は工務店さんからの新規プロジェクトの打ち合わせでした〜。 ペットのトリミングサロン&アロマトリートメントのエステサロン 人とペットが綺麗になれちゃう店舗の打ち合わせ。 どちらも初めて関わるサロンですが、 素敵なお施主様とお話しが出来てテンションMAXです(笑) イメージをたくさんお聞きしてきたので、これから構想を練りたいと思いまーす! 純度の高いエッセンシャルオイルを使う贅沢な施術なんですって(≧∇≦) サロンが出来たらエステしてもら...
SLowLifeLaboゆたかなくらし | 2014.06.15 Sun 00:23
翠松園の住宅が完成しました。 景色の良い場所での設計でしたので、 間取りの力よりも景色の力でリビングが気持ちよくなりました。 今回、ダイニングはサンワカンパニーのタイルを貼りました。 ライフグレーというタイルでグレーの色がなかなか美しいです。 キッチンもサンワカンパニーでコントルノのアイランドキッチン シンプルな形状でステンレスの風合いが良かったです。 リビングは勾配天井にしたので間取りよりも広く感じましたね。 リビングから自転車置き場が見えるようにして、 スキップフロアにすること...
住宅デザインの現場 | 2014.06.12 Thu 12:58
お茶の水の順天堂大学病院に新しい病棟が立ち、そちらの1階にできた「GREEN TERRACE CAFE」。 家具とディスプレイを担当しました。 一般の方も勿論利用できますが、入院の方、病院利用者等の年齢も状態も様々な方が利用されるカフェなので、 明るくクリーンなカラーリングとメンテナンス、ホスピタリティーを優先しました。 メンテナンスを考慮すると通常の飲食店のような素材感を生かした店作りができず、制約が多いため ディスプレイで置いたグリーンで少し有機的に。。。(といいながらアレルギーを考慮しフェイクです) キッ...
revel in | 2014.06.11 Wed 18:41
イタリアン食堂からお肉料理を中心としたイタリアンへ。 リニューアルをお手伝いしました。 居心地の良い雰囲気のあるレストランになりました。 イタリアンが食べたくなったら是非おすすめのお店です。 「BISTECCA 赤坂」 http://www.take-5.co.jp/goo-italiano/akasaka/ JUGEMテーマ:インテリアデザイン
revel in | 2014.06.11 Wed 18:08
JUGEMテーマ:インテリアデザイン 陰翳とあかり 前回は、リビング・ダイニングのあかりをシーリングライトや、間接照明など建築化照明で部屋のあかりを説明しましたが、照明デザイナーの石井幹子の書かれた「美しい光でつくるくらしの照明(あかり)」の中に、建築化照明をすべて取り払ってリビングのあかりについて書かれていましたので、今回本の中からリビングのあかりについて紹介いたします。(p-86〜89) 「リビングはサイドテーブルのあかりで上質のな空間づくりを」するために、「リビングには、六灯用の大柄なシャンデリ...
インテリアとライティング | 2014.06.11 Wed 09:33
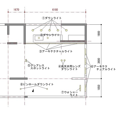
JUGEMテーマ:インテリアデザイン ライティングプラン(リビング・ダイニング) 今回は、パナソニックの「HomeArchiから2013年新ライティングプラン」を参考に、ライティングについて紹介したいと思います。 このプランは、傾斜のある吹抜け天井に光を届け、のびやかな空間を演出しているライティングから、リビング・ダイニングのシーンの変化のライティングの状況を紹介します。 下の図は、配灯PLANです。8種類の照明、合計で22台使用しています。点灯・点滅の組み合わせで、リビング・ダイニングにおける生...
インテリアとライティング | 2014.06.05 Thu 17:34
こんばんは SLow Life Labo です。 関東地方もそろそろ梅雨入りだそうですね〜。 私、雨がきらいです これから約一カ月雨が続くかと思うと気分がどんよりしてきちゃいそうです…。 でも、めげずにがんばりましょー! さて。 最近は、素敵なお客様のインテリアコーディネートをさせていただております そのお客様は建売の新築を買ったけどインテリアを相談する人ってどこにいるの? と、悩んでいらしたそう。 建売の不動産会社でもカーテンの提案はしてくれたそうですが、 その金額が妥当かどうか、そして...
SLowLifeLaboゆたかなくらし | 2014.06.04 Wed 23:40
JUGEMテーマ:インテリアデザイン ランプ効率と演色性 ランプ効率は、ランプの明るさに対する消費電力の比です。正確には、ランプの全光束量を消費電力で割った値である。単位は㏐/Wで表す。ランプ効率の数値の高いほど、同じ明るさを得るために必要な消費電力が少ないことを示す。すなわち、ランプ効率が高いほど、省エネ性が高いことになる。 下の表は、光源の種類によるランプ効率とRa(平均演色評価数)の一覧表です。 例えば、白熱電球100Wのランプ効率は、15㏐/Wです。同じ消費電力100Wの蛍...
インテリアとライティング | 2014.05.30 Fri 19:06
二階建ての一戸建てを借りたような感覚で賃貸契約を結んだものの、大家さんは荷物を動かしてくれず、近隣に住んではいないもののけっこう頻繁に出入りもあるので(奥にも空き家を持っていてそこの庭の植木の水遣りにやってくる)、私が借りているスペースは二階の和室三畳×3部屋のみ。 間取り図に表記されている二階玄関部分にはこれでもかと言うほどの大家さんの荷物がてんこ盛りです。 最初はせめて二階部分全てを好きに使いたいと奮闘したものの、もはや諦めて大家さんの荷物と共存する道を選びました。 ...
ちいさいおうち | 2014.05.28 Wed 22:57
全1000件中 731 - 740 件表示 (74/100 ページ)